Poste source 225Kv/20Kv - Aubervilliers

Maîtrise d’ouvrage : 

ERDF-RTE

 

Lieu : Aubervilliers - France

Architecte associé : Cyrille LAMBIN (Cyrlab)

BET : BERIM

Paysagiste : SEMPERVIRENS

Mission : APS, APD, PC, DCE, EXE, DET

Montant des travaux : 12 M € H.T

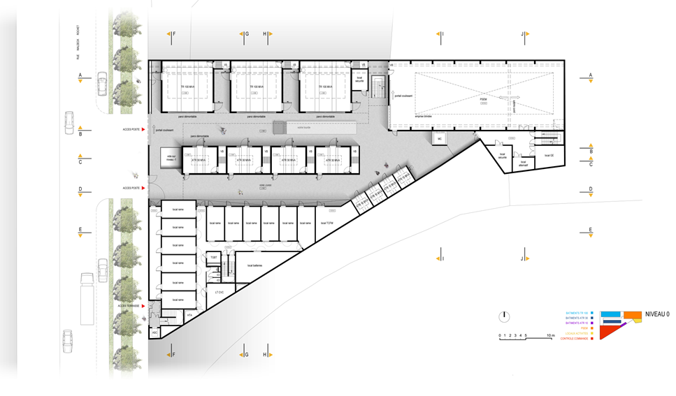
Programme : Création du Poste Source d’Aubervilliers de type grand urbain. 3 alvéoles TR-70Mva, 4 alvéoles ATR-30Mva, 4 alvéoles ATR-10Mva, PSEM, bâtiment de commande et un ERP en toiture.

Surface du programme :  8000 m²

  Calendrier : Concours: Janvier 2014, Etudes : 2014-2015, Chantier: 2016-2017.

Slide background
Slide background
Slide background
Slide background
Slide background